8 800 101 22 221111 1
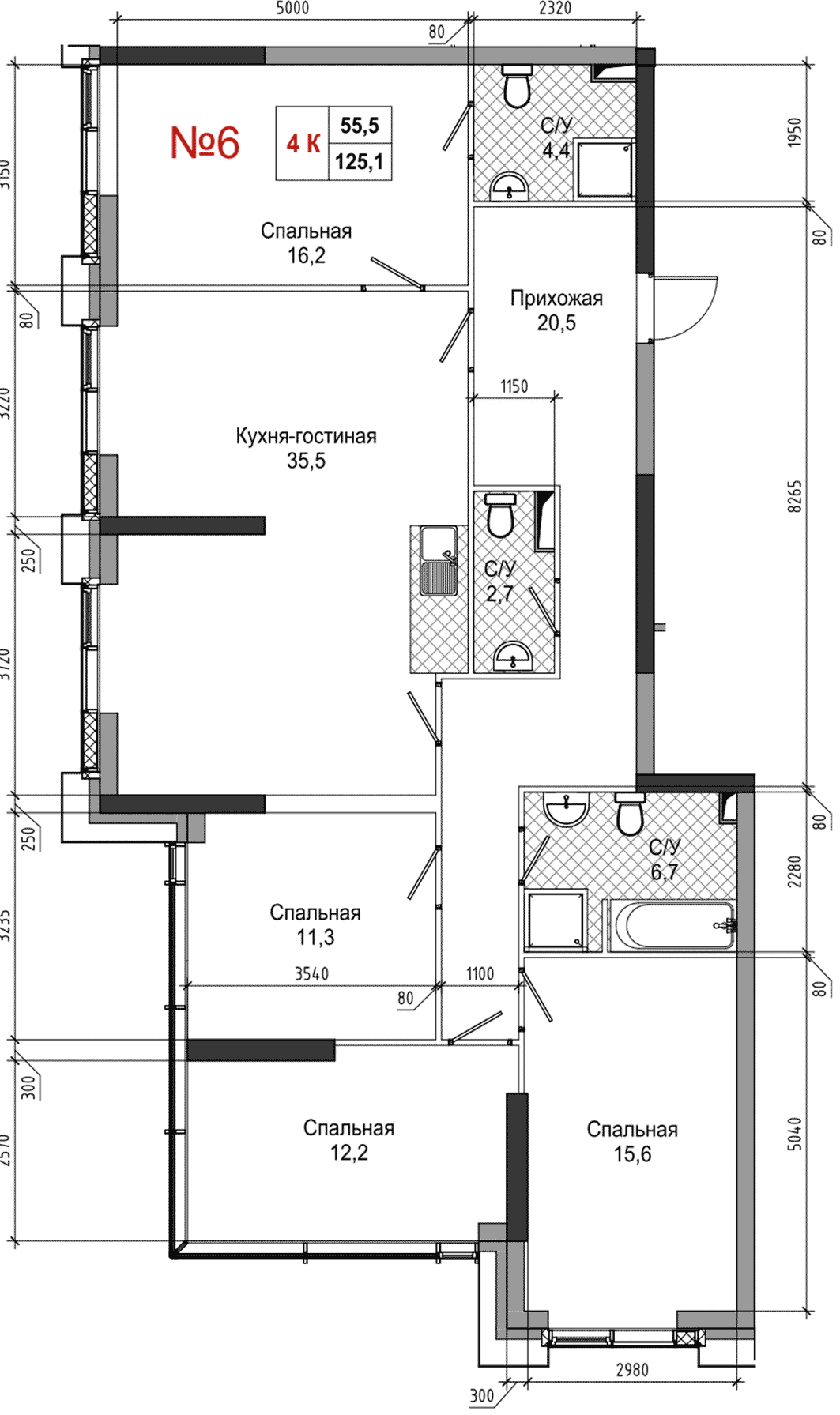
Назад Квартира №6
на этаже: 6
  • площадь: 122.7 м2
  • Этаж: 6 из 30
  • комнат: 4
Заказать
обратный звонок
Оставьте ваши контакты, мы с вами свяжемся
Ваша заявка
получена

С вами свяжется наш менеджер
в ближайшее время